栏目分类
热点资讯

澳门三色球开奖号码介绍

你的位置:澳门三色球开奖号码 > 澳门三色球开奖号码介绍 > 85后业主在厦门的家,100㎡空间超级浪漫,瞧瞧

85后业主在厦门的家,100㎡空间超级浪漫,瞧瞧

2025-01-25 21:37    点击次数:61

在过惯了单调的生活之后,人们总是向往着外面的城市向往着不同的生活方式。但是因为经济实力不允许,或者是其他原因,很多时候我们只能选择止步于此。

但是仍然有很多业主想要努力追寻自己的梦想生活。这次分享的就是一套100平方米的三居室。居住者是一位八五后的文艺女青年。从小业主就生活在厦门,喜欢古灵精怪的风格,向往着更加个性化的生活。

业主特别喜欢浪漫的北欧风格,从小期待着去国外留学,但是因为种种原因不能实现,买了这套房子之后,业主就决定将这套房子打造成自己梦想中的宫殿,在家里就能享受浪漫的异域情调,效果也是让人非常的惊艳,分享给大家看看。

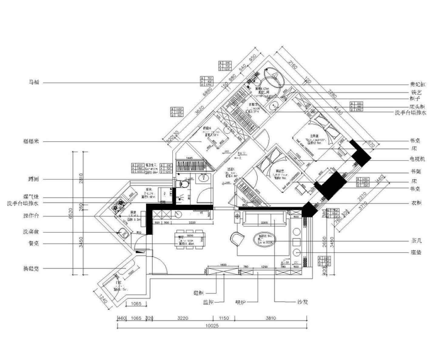
【户型图】

这套房子的户型结构,其实并不是十分的规则,多余的转角比较多,很难完成业主的使用需求,所以对于空间结构的调整就需要比较全面。

优化过后的空间格局得到了细腻的调整,而且内部风格以及搭配的元素全部从业主的喜好出发,真正地构建出一个理想化的家。

【走廊】

设计重点:让空间形成自然流畅

走廊并没有被浪费,可以利用的空间全部打造成收纳区。这样可以进一步强化空间的实际利用率。

造型别致的单品起到了恰到好处的烘托效果,让空间拥有更加别致的温柔。

日式茶室都加入为业主带来别样的休闲氛围,在家里就可以享受多样的放松。

【客厅】

设计重点:打造梦幻的宫殿

来到客厅完全来到了另一个世界。各种绚烂的色彩,在空间之中相互交融,碰撞出一个格外具有张力感的公共空间。

业主喜欢的欧式元素,在空间之中相互融合,让整个客厅都变得格外浪漫和高级。

打破了整个客厅的常规,运用了非常大胆,而且鲜活的色彩进行搭配,让空间拥有一种更加高级的跳跃感。

复古情调满满的单品在空间之中相互碰撞,不会给人带来一种杂乱的感觉,反而让人感觉到无比的舒适。

热情的红色是空间的主角,时刻给人带来一种心情的澎湃和畅快。

【卫生间】

设计重点:营造区域的高级效果

卫生间是最容易产生问题的地方。但是设计师将更多的重点放在了整个空间的颜值以及风格的烘托上,让卫生间也能强调整个空间的独特个性。

【厨房】

设计重点:高级和实用并存

来到厨房就来到了另一个功能空间。但是在厨房之中,除了必要的功能之外,设计师还非常注重颜值的搭配。

背景墙选择了错落有致的实木隔板,摆满业主喜欢的各种美景,既起到了装饰的效果,也能提升整个空间的格调档次。

【卧室】

设计重点:实现空间的复古交融

卧室也选择了非常浓郁饱满的复古色彩和元素进行搭配。碰撞出空间的静谧和舒适感。

豪华的水晶吊灯搭配对称布局的水晶壁灯,烘托出整个空间的大气。

可以定制的床头也选择了独特的造型,烘托出空间的沉稳感。

【餐厅】

设计重点:复古家具更大气

餐厅的餐桌,其实就是厨房的操作台,这样的布局可以让餐厅和厨房共享空间,减少不必要的空间浪费。

吧台式的餐桌搭配红色的餐椅,依旧可以保证整个空间的热情和靓丽,让餐厅也变得格外高级和贵气。

【衣帽间】

设计重点:营造动线上的和谐

衣帽间规划在角落之中,选择了嵌入式的衣柜。胡桃木的外观搭配金属拉手,进一步强调了空间的时尚感。

【书房】

设计重点:让办公变得更浪漫

书房的空间存在不规则的转角,调整之后将整个格局进行优化,让书房变得更加自由。



上一篇:没有了

下一篇:没有了

Powered by 澳门三色球开奖号码 @2013-2022 RSS地图 HTML地图